PODZ Horizon
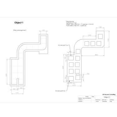
PODZ Horizon este o soluţie patentată cu membrană ranforsată şi filtre de carbon activ integrate pentru a acoperi etanş şi a reduce emisiile de mirosuri de la bazine de nămol, rezervoare de lichide sau de la alte suprafeţe urât mirositoare. Horizon poate avea diverse forme şi mărimi şi poate include ferestre de acces sau guri de inspecţie conform necesităţilor (ex: senzori, echipamente măsurare, mixere etc)
Filtrele cu carbon activ permit circulaţia liberă a gazelor către exteriorul bazinului pentru evitarea creării unui spaţiu închis.
Avantaje
Costuri reduse
Preţuri competitive
Croite pentru diverse forme de bazine, rezervoare
Fără costuri de energie
Elimină necesitatea utilizării chimicalelor
Inlocuire uşoară a filtrelor
Rezistente şi eficiente
Rezistente la UV
Rezistenţă ridicată la chimicale
Rezistenţă ridicată la tracţiune
Filtrele pot fi dublate pentru a oferi capacitate de adsorbţie ridiccată
Reducere tipică a mirosurilor cu 90-95%
Întreţinere minimă
Acces uşor pentru întreţinerea bazinului
Neafectate de aerare, modificări ale nivelului de lichid
Sunt menţinute condiţii aerobe ale proceselor
Fără acumulări de gaze periculoase
Fară acumulări de ape meteorice




Ai o aplicaţie care generează mirosuri neplăcute şi crezi ca acest sistem ar fi potrivit? Dă-ne mai multe detalii şi te vom ajuta cu o evaluare şi o cotaţie de preţ.
Vizitează pagina Contact sau scrie-ne pe e-mail la: info@solutii-mirosuri.ro
Copyright © 2025. SK Vacuum Consulting. Toate drepturile rezervate.


